五華區人民醫院暨五華區康養中心建設項目行政審批公示

項目名稱:五華區人民醫院暨五華區康養中心建設項目

項目性質:醫療建筑

申報類別:建設工程規劃許可證

申報單位:昆明市五華區科技產業園開發投資有限公司

規劃局審批經辦處室:昆明市規劃局五華區分局

公示類別:批前公示

公示時間:2018年9月4日至2018年9月12日

公示途徑:昆明城市規劃展覽館、項目現場、http://www.kmghj.gov.cn/、“昆明規劃建設”微信公眾號、“昆明市規劃局”微博公眾號  

項目簡介

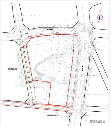
五華區人民醫院暨五華區康養中心建設項目,位于昆明市五華區泛亞片區陳家營路與普吉路交叉口西南側,普吉街道辦事處內。四至界限:東至普吉路;南至五華區司法行政中心108號路東段;西至規劃道路210號路南段;北至陳家營路。

項目規劃內容包括:

門急診綜合樓、醫技綜合樓、住院樓、康養中心、醫廢暫存及中心供氧、配套設施、地下室等。

 規劃申報指標 

用地面積:36560平方米

地上建筑面積:110653平方米(地上計容建筑面積:109679平方米) 

地下建筑面積:61828平方米

建筑密度:33.40%

容積率:3.00

綠地率:21.59% (異地補綠5000平方米,綠地率:35.26%)

本站轉載文章和圖片出于傳播信息之目的,如有版權異議,請在3個月內與本站聯系刪除或協商處理。凡署名"云南房網"的文章未經本站授權,不得轉載。爆料、授權:news@ynhouse.com。

相關資訊

猜您喜歡

參與討論

登錄 注冊

熱門評論