昨日,昆明市自規局發布了河序集小區的建設規劃證批前公示。河序集就是西安海榮今年8月從官渡國投手上收購的兩個地塊之一,位于繞城高速以北、古渡口路以西、付家營路以南,旁邊是滇池向陽院和俊發悅瀾海。
河序集容積率比較低,只有1.4,按理可以開發多層洋房,但因為建筑密度也比較低,只有18.02%,所以實際規劃了6棟11層的住宅,不過如今市場上把10來層的住宅也稱為電梯洋房。

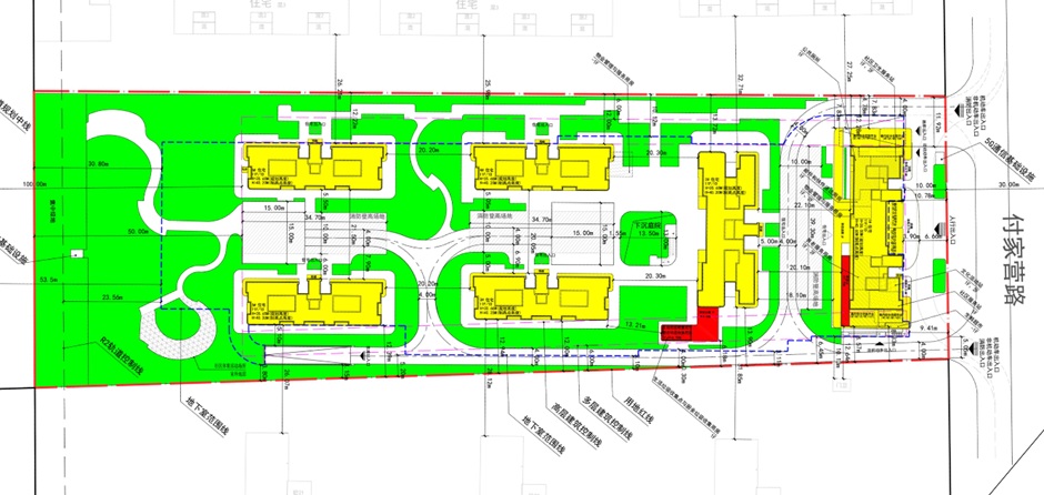
河序集地塊面積不大,僅規劃了6棟住宅
河序集的地塊面積不大,僅22.3畝,南側還有比較大的退讓,所以實際可建設區域就更小了,再加上整個地塊是比較狹長的長方形,短邊還不到70米,長邊差不多有230米,這在一定程度上制約了河序集在建筑布局上的靈活性,因此,盡管河序集僅規劃了6棟住宅,但至少有3類產品,樓棟朝向也不一樣。
在靠近付家營路一側,河序集規劃了唯一的一棟第四代住宅建筑。從平面布局來看,這棟第四代住宅應該有兩個單元,一梯兩戶,其中端戶的面積明顯比中戶要大,端戶布置于端頭的空中花園面積至少有30平米,還是比較闊綽。

河序集只有一棟住宅是第四代建筑
盡管四代宅如今在市場上非常受追捧,可是河序集卻只規劃了一棟,其余5棟從外觀看仍舊是上一代住宅,但按新規設計是毫無疑問的,其中4棟的座向是西北-東南,產品形態一致,一梯兩戶設計,目測戶型面積比較大,總共大概有88套,大概就是河序集的主打產品了。

河序集主打的是大戶型新規三代宅
總的來看,西安海榮盡管在河序集項目上也引入了時興的四代宅,但卻并不以此為主力,四代宅的數量也不多,重點產品其實是公建化外立面設計的大戶型三代新規住宅。雖然目前西安海榮尚未釋放戶型設計圖,但從過規效果圖看,窗墻比極高,還有大面積轉角落地窗;從平面圖看長寬比超過1.4,如此大的面寬,大橫廳應該沒什么懸念。

河序集平面布局
目前河序集項目已經在施工當中,由于只有6棟11層住宅,預計建設進度會很快,很可能在今年內就有樣板產品亮相,明年上半年上市銷售沒有多大問題。
接下來的懸念就是銷售價格了。海榮收購河序集項目公司官渡區悅華置業的價格是12466萬元,河序集總建面為23391.6平米(地上),每平樓面地價超過5300元,總開發成本不到1萬/平米,定價的空間還是比較充足。
相關閱讀
本站轉載文章和圖片出于傳播信息之目的,如有版權異議,請在3個月內與本站聯系刪除或協商處理。凡署名"云南房網"的文章未經本站授權,不得轉載。爆料、授權:news@ynhouse.com。








熱門評論