前幾天,云南房網看到了中通聯大書山項目的部分戶型圖,也看到有自媒體將聯大書山稱為昆明得房率最高的樓盤,說聯大書山首開戶型的標準層得房率有136%,夾層戶型得房率最高,達到252%,頂層戶型的得房率則有187%。

聯大書山的得房率是不是昆明最高,是不是昆明“卷王”,云南房網尚無法確認,不過聯大書山趕上了昆明執行新版城鄉規劃設計技術管理規定,而且本身就以贈送面積多著稱的四代宅,得房率高并不奇怪,加上項目地處呈貢,容積率不高,開發的是只有9層的電梯洋房,在同等條件下確實應該比高層住宅的公攤更低、得房率更高。
但看了一下聯大書山的戶型,總覺得有點那什么。
聯大書山的位置非常好,容積率又低,按理說應該開發更具有改善品質的產品,但首開的兩個主力戶型一個是只有119平米的四房,另一個是129.6平米四房,從面積段來說都小了一些,改善并不到位,大概算是剛需到剛改階段的產品。

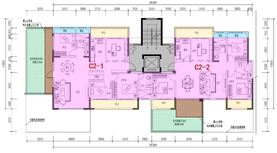
聯大書山偶數層戶型布局
因為戶型面積不大,盡管洋房的公攤小,可是戶型設計上仍略顯局促,比如119平米戶型為了實現大橫廳,相應壓縮了臥室面積,其中北向次臥的開間只有2.8米,扣除墻體后可能還不到2.6米。另一間南向次臥的開間也只有3.1米,扣除墻體后不到3米。而相對較大的主臥既沒有衣帽間,主衛也偏小。
129平米四房戶型因為沒有設計橫廳,而且面積更大,所以臥室相對寬敞,如果兩間南向臥室能夠和陽臺打通,空間就更富裕了,但這個戶型的問題是客廳在最里面,所以從入戶門進入后要穿過靜區才能到客廳和空中花園,這種設計因為違背了一般家庭的居住習慣,而且走廊浪費面積較多,早幾年出現在市場后并不是很受歡迎,但如果對此不介意的話,這個戶型還是不錯的。

聯大書山奇數層戶型布局
129平米戶型的另一個小瑕疵是餐廳距離廚房比較遠。南向次臥旁邊的早餐區也顯得有點奇怪,如果戶型圖上明確這里是西廚區可能是個加分項,因為很可能預留了上下水管路,可是圖紙上標注的是早餐區,莫非是只能在這里簡單吃個早餐?如果是這樣的是不是沒有布置排水管道?
總體看下來,聯大書山首推戶型在定位上還是顯得保守了些,說起來都是四房的戶型,但畢竟面積不算大,贈送的面積又絕大多數是花園和陽臺,所以其他功能區略顯局促,而且兩個戶型都只有主臥一個套房,對改善型產品來說改善得并沒有那么徹底。
按理來說,按照聯大書山的位置和規劃條件,完全可以開發更高端的產品,滿足呈貢高端改善客群的需要。實際上呈貢因為地廣人稀,絕大多數項目容積率都不高,這些年開發的項目普遍戶型較大,住宅品質總體上高過主城四區很多,像這種不到140平米的四房,放在在呈貢說只能說中規中矩。
當然聯大書山總共有3個地塊,后面的產品還很多,不排除中通世紀接下來推出大戶型產品。云南房網始終認為,大戶型才是第四代住宅真正發揮優勢的地方。戶型不大其實沒必要凹造型。比如聯大書山119平米的戶型,幾間臥室都不大,廚房也比較小,空中花園的面積卻有25.38平米,陽臺投影面積也有16.25平米,加起來就有41.6平米,似乎有點本末倒置了呢。
相關閱讀
本站轉載文章和圖片出于傳播信息之目的,如有版權異議,請在3個月內與本站聯系刪除或協商處理。凡署名"云南房網"的文章未經本站授權,不得轉載。爆料、授權:news@ynhouse.com。








熱門評論