最新消息傳來!涉及五華區這所學校

4月8日,昆明市自然資源和規劃局發布五華區右營村“城中村”改造項目(二期)C片區A7、A8和WH—SZ2—B3—01—05地塊新建中學批前公示,公示內容顯示,根據施工進度,項目擬分為兩期進行規劃核實。

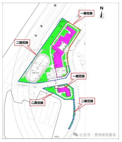
該項目用地分為4個地塊。

A1、A3地塊為一個整體,位于168號規劃路北側,西臨龍泉路,東臨169號規劃路,北臨已建住宅地塊,場地整體為坡地,西高東低最大高差約15米,臨龍泉路一面長約269米,東西方向最大面寬約76米;

A2地塊位于168號規劃路南側,場地為不規則三角形,北臨168號規劃路,東臨169號規劃路,南面為廢舊廠房區;

B1地塊為帶形公共綠地,東臨169號規劃路,北臨A2地塊,西側為空地。

其中1—A#樓,1—B#樓,2#樓,3#樓,A2地塊地下室,及建筑周邊部分室外場地、綠化和相關配套工程為一期;A1、A3地塊地下室,A1、A2、A3地塊余下部分室外場地(運動場)、綠化等配套工程,及B1地塊公共綠地為二期。

從地理位置來看,項目地處龍泉路、霖雨路、紅錦路與紅園路包圍的中心位置,西臨長蟲山、東臨盤龍江,近地鐵2號線霖雨路站和羊腸村站,交通便利,周邊配套成熟,生活便利。

該所中學的建成,勢必進一步優化片區教育資源配置。

本站轉載文章和圖片出于傳播信息之目的,如有版權異議,請在3個月內與本站聯系刪除或協商處理。凡署名"云南房網"的文章未經本站授權,不得轉載。爆料、授權:news@ynhouse.com。

相關資訊

猜您喜歡

參與討論

登錄 注冊

熱門評論