今天要分享的案例戶型比較奇葩,又窄又長,看著更像是一條過道,事實上,本案也確實是由一條街道改造而成。由于特殊的歷史發展原因,這樣的街道改造住宅案例在當地有很多,但實在不知道這樣的“跑道”戶型怎么住人。然而,本期案例的業主確確實實住在這樣的房子內,每天過著自律的生活,還養了一只寵物狗。
本案地址:越南
項目面積:90㎡
本案設計:Sawadeesign Studio
風格元素:簡約,原木,混凝土,工業風

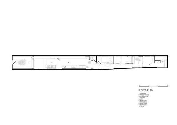
戶型圖
來看下戶型圖,果然是條又長又窄的“跑道”。房子內部做了動靜分區,從外到里依次是前院、客廳、廚房、衛生間、兩間次臥、內庭和主臥。總共90㎡,做了三室兩廳,還帶一個前院和一個內庭。

住宅正門口
本案左右兩側都是正常的住宅,本案被夾在中間,不難看出,原先這里就是一條小巷道。

從外墻大門進來后,先是一處小庭院,地面是水泥的,四周留了一圈凹槽,并鋪上了碎石,既方便了排水,又起到了一定的裝飾作用。

庭院后面是住宅的主體,從正面看是一個梯形,入戶門是白框包邊的玻璃門,采光效果好,明亮通透。在門的上方是一排小百葉窗,可以為室內通風換氣;側邊則用木板做了一條裝飾帶,同時這里還為家里的小狗做了一個專用的門洞。

進門后, 先是一處玄關過渡區域,在其中一側的墻面定制了一排木鞋柜,鞋柜分為上下兩部分,上面是鏤空的,透風防潮,鞋子放里面不容易發霉發臭;下部分做成了開放式的,用來存放當季經常換穿的鞋子。
與玄關鞋柜相連的,還有客廳電視柜和廚房吧臺柜,所有柜子連起來,占據了整面墻體。這一排櫥柜整體是不落地的,和地面之間留有10公分左右的距離。這樣設計,一是為了防潮,二是為了方便清潔,還有第三點原因,這里先賣個關子。

在櫥柜對面的墻壁,被處理成了白色,整體的室內空間白色以原木色+白色來表現,簡約素樸。

家具部分也以簡約為主,拿客廳的座椅來說,銀色的金屬框架搭配淺棕色的皮革,造型輕盈,線條流動,簡約實用。

屋頂部分的設計也值得一提,在狹長的戶型中,采光往往是一個大問題,尤其是本案這種兩側都是鄰居,被夾在中間,只有前后兩處采光面,但房屋過于狹長,屋內大部分空間是享受不到采光的。為了解決采光難的問題,設計師從屋頂下手,先是迎著光照設計了斜坡屋頂,增加采光面積;另外還在屋頂裝了大量的天窗,將光線引入室內。天窗的存在解決了采光問題,順便增加了通風口,一舉兩得。

廚房部分的裝修也以實用為主,廚臺是不銹鋼的,堅實耐用,有種硬漢工業風的質感。

廚房區域的墻壁選擇了小塊的白色瓷磚,不怕廚房油煙,清洗起來也比較方便。

還記得上文提到的櫥柜下方留出的10公分空間嗎,原來這里面還裝了一條隱藏式燈帶,到了晚上,將燈打開,柔和的燈光從櫥柜底下散發出來,照射在水泥的地面上,燈光效果溫馨柔和,富有層次感。

在客餐廚空間的盡頭,原本靠墻直線排列的櫥柜來了個斜角轉彎。在這面斜著的墻體上,除了有一個洗手臺外,還有三扇門存在。

打開門,原來后面藏著的是衛生間。由于本案特殊的“跑道”戶型,空間狹窄有限,正常情況下很難布置得下衛生間,但是將空間做成斜的,問題就迎刃而解,而且還是洗手池、馬桶區、淋浴區的三分離格局,這樣的空間處理方式可謂非常巧妙。

而當我們打開最后一扇門的時候,則會進入本案的另一個空間。兩間次臥,一間主臥依次排列在這里。

次臥
這是其中一間次臥,三面靠墻,空間雖小,但是簡約溫馨,床頭背景墻是一整面玻璃,外面是一個天井空間,可以提供采光和通風。

主臥
主臥空間還是比較大的,地面是原木地板,配白色的墻面和吊頂,床鋪朝著天井擺放,空間感還是不錯的,在主臥的后面還帶有一個獨立的衛生間。除了位置太靠里,從門口進入主臥要跑50米外,主臥的居住體驗還是非常不錯的。
本站轉載文章和圖片出于傳播信息之目的,如有版權異議,請在3個月內與本站聯系刪除或協商處理。凡署名"云南房網"的文章未經本站授權,不得轉載。爆料、授權:news@ynhouse.com。










熱門評論