項目名稱:昆明東盟商貿港(項目一)
申報類別:附圖變更
項目性質:商業
申報單位:云南浙商投資開發有限公司
公示時間:2019年9月9日至2019年9月18日
公示途徑:昆明城市規劃展覽館、http://ghj.km.gov.cn/、項目現場、“昆明規劃建設”微信公眾號、“昆明市自然資源和規劃局”新浪微博。
項目介紹
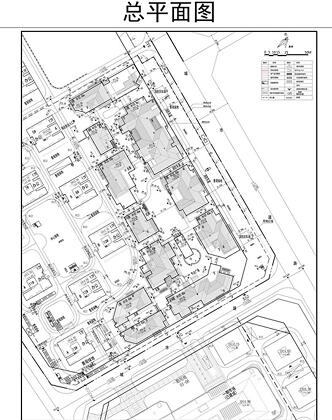
本項目位于昆明市呈貢區洛羊物流片區,昆磨高速以東,彩龍路以南,呈榮大道以北。該項目于2011年5月12日取得《建設工程規劃許可證》(建字第530101201100064號),現申請辦理建設工程規劃許可證附圖變更,各項經濟技術指標均未做改變。




變更內容
1.外立面調整;
2.材質上選用灰磚和紅磚為主要墻面材料,窗臺及其余線腳處使用褐色及米黃色等質感涂料;
本站轉載文章和圖片出于傳播信息之目的,如有版權異議,請在3個月內與本站聯系刪除或協商處理。凡署名"云南房網"的文章未經本站授權,不得轉載。爆料、授權:news@ynhouse.com。








熱門評論