相關資訊 更多>
-
中航城A3地塊一區五棟住宅已于近日交房
近日,昆明航匯投資有限公司發布了中航城A3一區的交付公告,據顯示,該項目A3一區已具備交付條件,并且,已于2017年12月27日-29日期間,在中航城物業服務管理中心,完成了交付手續。
2018-01-03 17:31
-
中航城中期評測產品點評篇:戶型拓展空間大
中航城是由昆明航匯投資有限公司開發的高層住宅項目,位于官渡區珥季路西段和繞城路交匯處,靠近五甲塘濕地公園,綠地環繞,生態宜居。該項目共分為A1、A2、A3三個地塊,其中,A1、A3地塊用于住宅建設,A2地塊做商業用途。
2017-11-16 17:33
-
中航城中期評測同類對比篇:配套仍待完善
中航城除高層住宅外,還規劃有11萬方的商業和兩所學校。學校現均已建成,其中一所確定為知名幼兒園品牌——紅黃藍幼兒園,尚未開園。商業均置于項目的A2地塊,預計開設餐飲店、便利店、藥店等業主生活必備店鋪,A2地塊目前還在規劃當中,暫未動工。
2017-11-16 17:30
-
中航城中期評測基礎資料篇:濕地環繞 特色生態受青睞
中航城位于官渡區珥季路西段與繞城路交匯處,是由昆明航匯投資有限公司開發的高層住宅項目,因其周邊濕地環繞,臨近滇池,生態絕佳,自開盤以來便受到眾多購房者的青睞。
2017-11-16 17:11
-
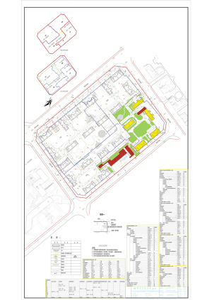
中航城(云璽城市花園A3地塊)分期規劃核實公示
由昆明航匯投資有限公司開發建設的云璽城市花園A3地塊位于官渡區五甲塘片區,南繞城線以南,凈用地面積為118115.06平方米。場地較為平整。
2017-11-01 09:26
-
中航城13棟、14棟已取得預售證 平層9500元/平米起
10月20日,位于官渡區的中航城(A1地塊VII)取得了預售證,取得預售證的房源為13棟、14棟,預售面積為131936.39㎡。據銷售人員介紹,從取得預售證當日起,已開始進行銷售。
2017-10-24 16:08

網友評價更多點評(34) >