恒隆廣場君悅居公寓20號獲得預售證,本月26號正式開放樣板間并開始預售,但在預售前兩天,君悅居在24號實際上就開放了樣板間,云南房網第一時間就預約參觀了一下,來了個先睹為快,

君悅居首批樣板房的只有4個戶型,面積最小的是123平米的一居室,最大的則是278平米的三居室。很早前君悅居對外釋放的價格就是4萬-6萬平米,據云南房網了解,首發房源中面積最大的戶型售價達到了1200萬左右,妥妥的千萬級別公寓。
君悅居的樣板間給人印象最深的,首先還不是高檔裝修,而是空間的寬綽,尺度上的富裕,因為君悅居133平米的戶型只有一居室,178和180平米的兩個戶型都是兩居室設計,最大的256平米戶型也才三房,所以每個戶型的空間感都很舒服,再加上身處高層大面積落地窗帶來的充足采光,又有3.6米的層高,室內顯得十分高大、寬敞、明亮。
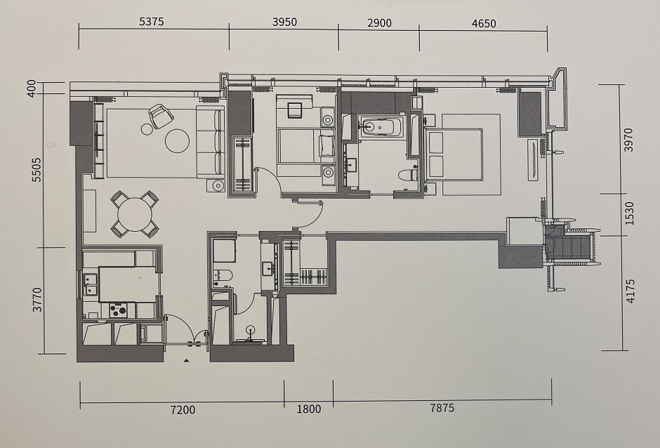
以數量的最多的兩房戶型來看,比如這套178平米的戶型(下圖),昆明一般普通住宅超過120平米就怎么都要設計成四房,帶來的結果是每間房都很局促,尤其是衛生間、廚房,也就將將達到國家標準的下限,但看君悅居的這個戶型,主臥的長寬達到5.4米和4.6米,非常寬大,而且還自帶獨立衣帽間,主衛也尺度足夠。

君悅居178平米戶型
另一個180平米更為方正的戶型就更是如此,主臥和次臥都很大,所以兩間臥室都有單獨的休閑區。主衛和客衛目測使用面積都超過10平米,非常寬敞。相比起來,許多普通住宅的衛生間使用面積僅僅達到國家規定的最低標準——2.5平米。

君悅居180平米戶型
至于裝修方面,因為君悅居對外宣傳的裝修標準是8000元/平米,再加上4-6萬元的售價,所以檔次還是有所保證,首先是設計見水準,其次是用材不含糊,比如客餐廳地面都是石材,臥室則采用實木地板,所有墻面都做了墻布軟裝,潔具五金也都是知名品牌。
在配置上,君悅居也基本是應有盡有,有中央空調、新風、地暖(僅衛生間),其中中央空調并不是早前有人猜測的與樓下君悅酒店共用中央空調系統,而是每戶獨立,使用起來更加靈活。較為獨特的是君悅居在衛生間鋪設了地暖,地暖的舒適度自然大大超過暖風,應該在昆明是獨一份了。

恒隆廣場高層實景
目前比較流行的智能家居系統方面,君悅居也沒有落下,而且采用的是傳感器領域比較牛逼的霍尼韋爾智能家居系統。了解這個行業的人應該都知道,霍尼韋爾的東西很好,缺點就是貴。既然有了智能家居系統,電動窗簾也自然是君悅居的標配。
廚電方面,君悅居也是一應俱全,品牌分別是博世和美諾。值得一提的是,洗衣機和烘干機也是君悅居的標配,品牌同樣是博世。
總的來說,君悅居的裝修檔次達到了這個價格公寓的應有水準,只不過樣板間不允許拍照,要想領略就只能去現場了。
在參觀樣板間時,云南房網意外得知,君悅居雖然屬于商業公寓,但卻是按照民用水和民用電收費,而且實現了燃氣入戶,除133平米的戶型外都可以使用燃氣灶具,這兩點就超過了昆明90%以上的公寓,所以居家生活在恒隆廣場是沒有一點問題的。
因為時間緊湊,君悅居的樣板間又多,所以更多產品細節無法逐一探究,好在明天君悅居的樣板間就將正式開放接待,有興趣的可以親身前往一看。云南房網還得知,雖然正式預售是明天,可是今天已經有客戶開始繳納定金,而且人還不少,看起來昆明千萬級公寓也還是有市場的。
相關閱讀:
本站轉載文章和圖片出于傳播信息之目的,如有版權異議,請在3個月內與本站聯系刪除或協商處理。凡署名"云南房網"的文章未經本站授權,不得轉載。爆料、授權:news@ynhouse.com。








熱門評論