上周,西北新城義承金川府和東原印江山的疊墅項目同日獲發預售正式上市,這兩個項目都是片區內少有的低密度社區,且關注度比較高,那么這兩個片區內僅有的疊墅產品究竟怎么樣?各自有什么優缺點?小編從項目的區位、規劃以及產品多個維度進行來PK一番。

東原印江山和義承金川府都位于西北新城
首先,我們先了解一下兩個項目的具體位置
東原印江山位于沙河北路與普吉路口,已簽約的紅旗小學就項目對面,鄰近云南省阜外醫院,周邊在售的樓盤有三千時光、清河居花棲里,距地鐵4號線金川路直線距離約1公里,旁邊還有西北部客運站。
義承金川府北臨春城慧谷小區,南臨上峰新村,靠近西三環,東側為海源北路高新一小,項目距首創奧來直線距離約500米,旁邊還有延安醫院高新醫院,項目距離地鐵4號線大河埂站點約2.3公里,旁邊有海源寺車場,多條公交途經。
兩個項目的區位都不算片區核心位置,也都離地鐵較遠,但由于西北新城配套已比較完善,擁有五華區文體中心、宜家家居、吾悅廣場、阜外醫院、五華區人民醫院、以及地鐵4號線等配套,居住氛圍與生活便利度都不錯。
其次,看項目規劃

東原印江山效果圖
東原印江山項目占地面積189畝,為商住混合用地,分四個地塊開發,首推的10號地塊,以“高低配”的形式,規劃4棟高層和7棟疊拼,容積率2.6,綠地率40%。項目內部規劃“原聚場”,后期商業的交付也將提升業主的生活便利度。

義承金川府效果圖
而義承金川府則是純住宅地塊,整個項目占地面積140畝,規劃了23棟洋房和15棟疊拼,容積率僅1.83,小區內打造約20000平米新中式園林,居住環境清幽。
最后看產品,以總價都在300萬左右的兩個中疊戶型為例


義承金川府150平米中疊戶型贈送的負一層和夾層
義承金川府建面約150平米的中疊戶型,加上贈送的負一層、夾層和花園面積(花園位于一樓北側),改造后實得面積可達309平米,得房率206%。

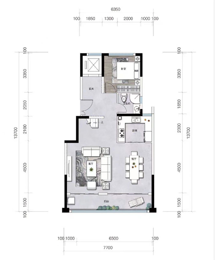
義承金川府150平米中疊戶型三層平面圖
三層除餐客廳外,只布局有一個約11平米的臥室,廚房面積為6.9平米,可滿足家人多樣的烹飪需求。南向開間長7.7米,外接同等長度的陽臺,陽臺面積有11平米,與餐客廳相連。

義承金川府150平米中疊戶型四層平面圖
四層有3個臥室,約7.7米南向采光面,每個臥室都帶落地窗。主臥面積有25平米,帶步入式衣帽間和獨立衛浴。
而東原印江山約143平米的中疊有三、四兩層,加上贈送的挑空面積和露臺,實得面積約192平米。

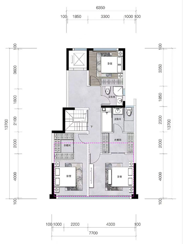
東原印江山143平米中疊三層平面圖
三層除餐客廳區域外還有一個約9平米的臥室,廚房面積約為5平米,南向開間約8.4米外接約14平米的觀景陽臺,其開間和陽臺要比金川府大一點。

東原印江山143平米中疊四層平面圖
四層布局有三個臥室和一個約5平米左右的露臺,主臥面積寬敞達30平米。三個臥室也均帶有獨立衣帽間和落地窗。
兩個戶型總價都是在300萬左右,義承金川府因為有負一層、夾層還有花園贈送,實得面積要比印江山多了將近一百多平米。
那么問題來了,如果你有300萬的預算,你會選東原印江山還是義承金川府呢?
本站轉載文章和圖片出于傳播信息之目的,如有版權異議,請在3個月內與本站聯系刪除或協商處理。凡署名"云南房網"的文章未經本站授權,不得轉載。爆料、授權:news@ynhouse.com。








熱門評論