俊發·春之眼終于要開始賣了,小編今日從售樓部獲悉,項目預計于年底開盤,目前356平的實體樣板間已開放,預約看房需驗資500萬,首開有8個戶型,裝修標準為1.5萬元/平起。

俊發·春之眼效果圖,主樓高407米,副樓約308米
經證實,俊發·春之眼確實在近日開放了一個實體樣板間,位置在俊發·春之眼副塔第11層,不過目前暫時只對提前凍資50萬的客戶開放,而針對未提前凍資、但想要參觀樣板間的客戶則就需要驗資500萬后才能預約看房。
驗資500萬對于春之眼這樣的項目來說不算意外,但裝修標準1.5萬/平起還是讓小編稍有點驚訝,是的,你沒看錯,1.5萬/平米都已經趕上昆明目前住宅成交均價了,而這還僅僅只是春之眼裝修標準的起步價,據透露,項目戶型越大,其精裝標準還會更高。
置業顧問對此解釋道,春之眼裝修所用品牌均是國際高端品牌,不少還是行業里的奢侈品牌,比如勞芬、當代、BOEN等,而全套智能家居系統,新風,地暖,中央空調等硬件設備等也是標配。
這些配置均在這次開放的356平樣實體板間中可以看到,后續項目也將推出更多戶型的樣板間。
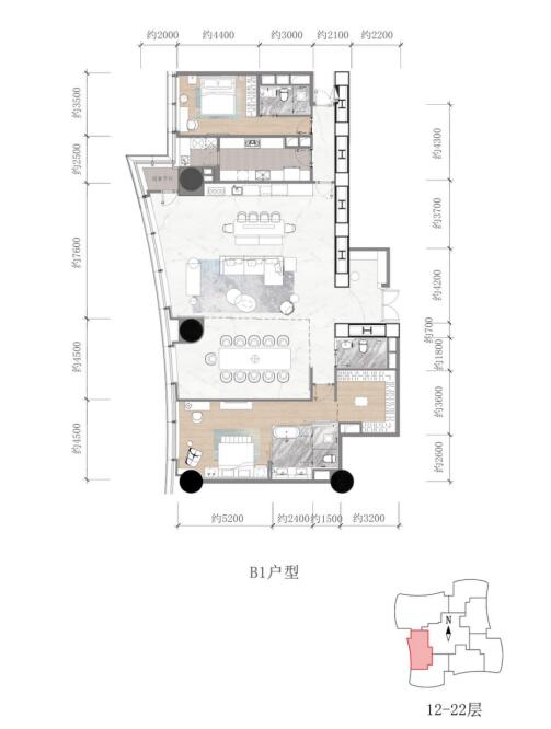
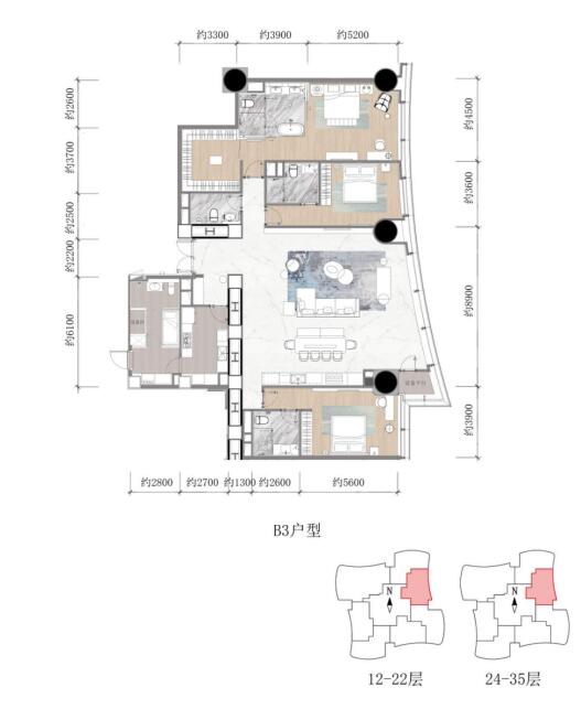
那么這個參觀門檻如此之高的項目到底長什么樣子呢,小編非常好奇,但遺憾的是參觀樣板間或者提供實景圖片資料的請求,都未獲允許,不過,項目方還是提供了首開產品的8個戶型圖,如下:








春之眼總高71層,其中9層以下是商業,從10層起為公寓,11層為實體樣板間展示區域,首開房源位于12-35層(23層為避難層),首推產品共有8個戶型,其中除F戶型的產品建面約600平以外,其余產品戶型建面均在300平左右。
后續俊發·春之眼會推出更多如建面600平、1000平的戶型,其中頂樓為躍層公寓(70層躍71層),戶型建面可達1790平。據置業顧問介紹,由于高層大戶型還在做優化設計,所以目前釋放出的產品面積段也是只是大概。
春之眼早在去年1月就拿到了首張預售證,但項目卻因戶型優化遲遲沒有開盤。目前俊發·春之眼已經建至18層,具體的開盤時間還沒有確定,預計會在今年年底。

俊發·春之眼區位示意圖
俊發·春之眼地處昆明一環內,位于北京路與拓東路交匯處,是俊發在2013年耗資約8億元拿下的土地,面積約50畝,由兩棟超高層建筑和高端商業裙樓組成,其中主樓高407米,副樓約308米,建成后將成昆明的又一個地標“雙塔”,業態涵蓋頂級寫字樓、公寓、酒店等。
近年來昆明的公寓市場并不樂觀,存量大去化慢,其價格也是遠遠低于普通高層住宅。但俊發·春之眼占據昆明市中心的獨特區位,依靠此優勢其產品定位極高,截止目前,該項目的產品價格仍然沒有確定,但1.5萬元/平的裝修標準也把俊發·春之眼“頂豪”的一面表現出來了。
本站轉載文章和圖片出于傳播信息之目的,如有版權異議,請在3個月內與本站聯系刪除或協商處理。凡署名"云南房網"的文章未經本站授權,不得轉載。爆料、授權:news@ynhouse.com。








熱門評論