從2019到2020年,如果列舉昆明樓市的5大高頻詞匯,“巫家壩”一定是其中之一。
亞洲第一、世界第四的國際級CBD中央公園,昆明面向南亞東南亞區域金融中心、企業總部基地、傳媒中心、商業中心的重要載體,昆明最令人期待的黃金教育學區,巫家壩的價值已經無須贅述。
作為昆明“黃袍加身”級別的區域,巫家壩擁有全昆明最頂級的配置——昆明未來最好的環境、最好的配套、最好的學校、最高的升值保值潛力,同時也帶來最高的置業門檻。
豪宅、大戶型扎堆
中產購房者如何入席巫家壩?
好,很好,非常好,但是,門檻太高!
——這是巫家壩樓市給大部分購房者的直觀印象。事實也確實如此。
1、大面積產品是入席巫家壩的最大障礙
從綠地428公館,到中鐵建西派國樾,巫家壩從不缺豪宅。價格從23000元/㎡,到30000多元/㎡,套總價高達400-700萬元,巫家壩仿佛是專為上層富豪們準備的禮物,讓人只能仰望。
拋開豪宅不談,巫家壩的改善型產品,門檻同樣不低。
巫家壩飛虎大道附近的改善型戶型,基本都在120㎡以上,最小戶型普遍為105㎡至110㎡之間,100㎡以下的戶型非常之少,有的項目甚至沒有100㎡以下的產品,總價基本都在220萬以上。
小戶型的稀缺,讓巫家壩的入圈門檻,對于剛需購房者和實用型購房者非常不友好。
2、全城視角下,巫家壩的單價不再“嚇人”
縱觀全城,我們得到了一個事實,昆明其他區域與巫家壩的價格正在逐漸拉平。
西市區二環外項目單價為16000元/㎡至17000元/㎡,高的甚至賣到17900元/㎡,北市區三環外項目已經賣到14500-15000元/㎡,反觀巫家壩改善型產品的價格,則在19000元到21000元/㎡。可以看到,昆明二環、三環以及邊緣區域的價格,和巫家壩的價格差距正在逐步縮小,1000-3000元的差價,分攤到首付里,差距更加微小。
這就讓很多購房者產生了一個思考:
是購買二環、三環以及邊緣區域的房子,還是一步到位進駐巫家壩CBD?
是把錢用在其他片區多買幾平米,還是把錢放在昆明人都知道,增值潛力最強的巫家壩?
是心疼那幾千塊差價,還是墊一墊腳,直接進入昆明公認的高端圈層聚集區?
相信大家心里已經有答案了。
巫家壩今年的“王炸”!
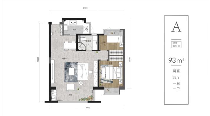
首創·未來之城 93㎡兩房/三房私人定制產品
首創·未來之城的這個產品,為什么是“王炸”?
因為它直接解決了剛需型、實用型、有眼光的購房者們入席巫家壩的所有問題。
王炸1:巫家壩極其稀缺的93㎡小戶型
之前說過大面積產品是進階巫家壩的最大障礙,而巫家壩市場上,小戶型產品又特別稀缺。100㎡以下的已經很少見,95㎡以下的產品基本沒有,而且一經推出就會很快售光。
首創·未來之城這次,直接推出了93㎡小戶型,完全符合市場需求,再一次將入席巫家壩的總價門檻再度降低,讓一部分苦于夠不著的購房者,擁有了進階巫家壩的通行證。

首創·未來之城 樣板房實景圖
王炸2:巫家壩首個私人定制產品
首創·未來之城這次的私人定制,并不是像很多開發商那種玩個噱頭,而是真正的私人定制產品。
購房者在購買93㎡戶型時,就能根據個人需求,選擇兩房產品還是三房產品,任意樓層、任意樓棟(93㎡戶型在售樓棟),均無限制。完全按照購房者需求私人定制,甚至會出現在同一樓層中擁有兩房三房的不同戶型,且互不影響。
這在整個昆明甚至全國樓市都是極其少見的,很少有開發商能滿足這種程度的定制需求。
兩房/三房隨需定制,最大化滿足不同客戶的不同需求,在巫家壩,這是首例。

首創·未來之城 93㎡兩房戶型圖

首創·未來之城 93㎡三房戶型圖
王炸3:巫家壩王炸三房fun購節
除了產品方面的王炸,首創·未來之城這次還拿出了今年最有誠意的四重鉅惠政策。區別于很多項目的虛假優惠,首創·未來之城的這次鉅惠政策是實實在在的誠意重磅鉅惠。
小編在這里不能透露太多,但可以肯定地告訴大家——絕對是今年巫家壩樓市王炸級別的鉅惠!
三手王炸一起打出,首創·未來之城的93㎡兩房/三房私人定制產品,真的要在2020年底,徹底擊穿巫家壩樓市了。有興趣的朋友還是趁早下手吧,可以預見這個產品一定非常非常搶手。
首創·未來之城
首領巫家壩·王炸三房fun購節
首期僅16.8萬起,鉅惠保障無前例
巫家壩·地鐵上蓋·濱水謐境
建面約93-179㎡CBD靜逸奢邸·全球首推
本站轉載文章和圖片出于傳播信息之目的,如有版權異議,請在3個月內與本站聯系刪除或協商處理。凡署名"云南房網"的文章未經本站授權,不得轉載。爆料、授權:news@ynhouse.com。








熱門評論