俊發城逸璟峰項目位于云南省昆明市盤龍區司家營街。據置業顧問介紹,目前項目的最后一棟(4#)住宅在上周六開盤,建面約123平米和143平米兩個戶型,總高32層,2梯4戶設計,惠后均價約17000元/平米,精裝交付。同時,項目前期開盤的3#住宅還有少量房源在售,整體設計與4#相同。
另外值得關注的是,俊發城逸璟峰的LOFT公寓-逸璟峰公館,近期在認籌中,建面約38-61平米,層高為4.5米,共21層,4梯21戶設計,價格為12000元/平米,精裝交付,預計本周末開盤。

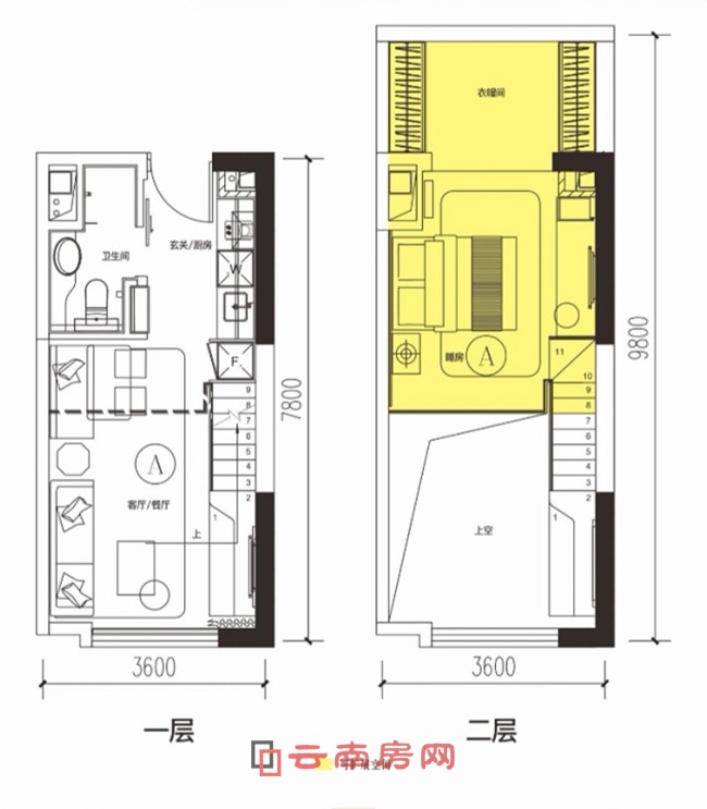
俊發城逸璟峰公寓的A戶型-逸璟峰·臻公館,建筑面積約38平米,可拓展面積約19米,該戶型較小,總價低,投資置業壓力小,空間百變隨心,多種風格自由打造,兩層區域有效分隔,是年輕置業者的首選,功能一應俱全,居住和投資皆可。
據了解,俊發城逸璟峰項目內配備跑步環道、兒童游樂場所、老年活動場所及業主健身房、恒溫泳池會所、社區廚房、兒童廚房、社區圖書館等生活休閑配套,為業主帶來了溫馨、周到的鄰里社交平臺及休閑娛樂中心。

俊發城逸璟峰規劃有約2萬方主題性街區商業。此外,項目還可享受俊發城的商業、公園等配套。項目距離最近的昆明市第一人民醫院甘美國際醫院約2.5公里,除了較為成熟的商業、醫療配套外,項目周邊交通路線緊密,可有公交、地鐵、自駕等多種方式出行,方便快捷。
另悉,俊發城逸璟峰項目內配套的34班明通小學已建好,今年9月份已正式招生,并投入使。明通小學是由俊發出資40%,藍光出資60%合建,學校建成后俊發城逸璟峰和藍光林肯公園的子女可就讀。
本站轉載文章和圖片出于傳播信息之目的,如有版權異議,請在3個月內與本站聯系刪除或協商處理。凡署名"云南房網"的文章未經本站授權,不得轉載。爆料、授權:news@ynhouse.com。








熱門評論