













項目名稱:萬宏嘉園(王旗營城中村改造項目)地塊一
項目性質:商業、商務辦公
申報類別:建設工程規劃許可證附圖變更
申報單位:云南奧斯迪百爵房地產開發有限公司
規劃局審批經辦:昆明市規劃局盤龍分局
公示類別:批前公示
公示時間:2016年3月18日至2016年3月28日
公示地點:昆明城市規劃展覽館及項目現場
公示媒體:昆明日報
公示組織單位:昆明市規劃編制與信息中心
項目簡介
萬宏嘉園——王旗營城中村改造項目位于盤龍區聯盟街道辦事處轄區,東至穿金路鐵路小區、興運家園、云北汽修,南至省農墾局宿舍、聯盟路、鐵路北站西貨場宿舍,西至萬宏路、世紀俊園、時光俊園,北至龍泉花園、王旗營小區、靜云小區、華恒家園、錦豪塑料廠。
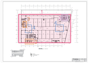
本次公示為建設工程規劃許可證附圖變更,具體變更為:
一、由于沃爾瑪公司的簽約入駐,根據沃爾瑪方面的要求對原設計進行如下調整:
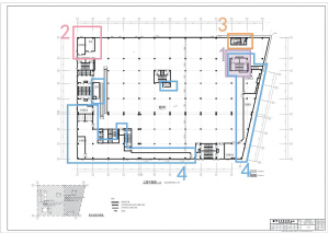
1、為了沃爾瑪顧客方便使用夾層(自行車庫),調整原夾層平面位置,但不影響夾層面積及非機動停車數量;
2、根據沃爾瑪要求調整平面內其員工專用樓梯位置、入口處自動扶梯位置以及二、三層平面內增加倉庫及一些設備用房等;
3、外立面廣告位按照原經規委會審核通過的設計方案實施。
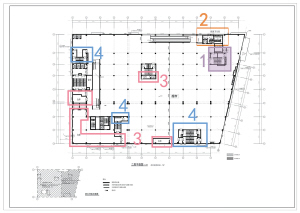
二、為了適應市場,調整該地塊建筑內一、四、五層平面原大空間商業業態為小空間商業業態(商鋪),并根據調整后平面增加兩個小衛生間供服務人員專用以及調整原設計中的一個衛生間位置。
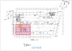
三、由于設計人員工作的疏漏,造成原報建圖中的一些失誤引起的變更(該部分變更內容包括外立面圖變更及增加補充六層平面圖等)。
四、項目6~17層平面圖
1.原平面圖中,每層7個辦公室產權單元,現調整為19個辦公室產權;
2.原平面圖中,公共衛生間位于東北向,現調整于西北向。以上變更不涉及該項目各項經濟技術指標的變更。
備注:
對以上公示項目有異議者,請在公示期限內以書面形式將意見和建議反饋到昆明市盤龍區拓東路122號昆明城市規劃展覽館3樓或昆明呈貢區市級行政中心4號樓3樓昆明市規劃編制與信息中心385室。聯系電話:63194144。
昆明市規劃局
2016年3月18日
本站轉載文章和圖片出于傳播信息之目的,如有版權異議,請在3個月內與本站聯系刪除或協商處理。凡署名"云南房網"的文章未經本站授權,不得轉載。爆料、授權:news@ynhouse.com。








熱門評論