項目名稱:中洲陽光(商業二期)
項目性質:商業
申報類別:建設工程規劃許可證
申報單位:云南三和房地產開發有限公司
規劃局審批經辦:昆明市規劃局盤龍分局
公示類別:批前公示
公示時間:2016年1月15日至2016年1月25日
公示地點:昆明城市規劃展覽館及項目現場
公示網址:http://ghj.km.gov.cn/
公示媒體:昆明日報
公示組織單位:昆明市規劃編制與信息中心

項目簡介
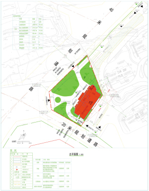
由云南三和房地產開發有限公司開發建設的中洲陽光小區(商業部分二期)項目,位于盤龍區龍泉鎮云波辦事處,周邊交通便捷,地理條件優越,生活方便,地塊東至中洲陽光(住宅部分;西鄰盤龍1號路;北接中洲陽光(住宅部分);南至中洲陽光(商業部分二期)。
規劃申報指標
凈用地面積:0.39公頃
總建筑面積:21873.24平方米
地上建筑面積:16176.26平方米
地下建筑面積:5702.98平方米
建筑密度:23.45%
容積率:3.92綠地率:36.22%
備注:
對以上公示項目有異議者,請在公示期限內以書面形式將意見和建議反饋到昆明市盤龍區拓東路122號昆明城市規劃展覽館3樓或昆明呈貢區市級行政中心4號樓3樓昆明市規劃編制與信息中心385室。聯系電話:63194144。
昆明市規劃局
2016年1月15日
本站轉載文章和圖片出于傳播信息之目的,如有版權異議,請在3個月內與本站聯系刪除或協商處理。凡署名"云南房網"的文章未經本站授權,不得轉載。爆料、授權:news@ynhouse.com。








熱門評論